水栓柱 オンリーワン ラギッドW マットネイビー TK3-SRWMNの通販は環境生活

TOP > ガーデン・水まわり > 水栓柱

オンリーワン ラギッドW マットネイビー TK3-SRWMN
オンリーワン ラギッドW マットネイビー TK3-SRWMN
オンリーワン ラギッドW マットネイビー TK3-SRWMN

オンリーワン ラギッドW マットネイビー TK3-SRWMN

商品番号 tk3-srwmn

定価76,780円のところ
全品5%OFFセール!2026/2/26まで61,855円(税込)

この商品を購入すると619ポイント進呈

[ 送料パターン 送料無料(1) ]

数量
商品についてのお問い合わせ
お気に入りに登録 お気に入りに登録済み

ご購入前の注意点
・午前・午後等の時間帯を含め、配達日時はご指定いただけません。


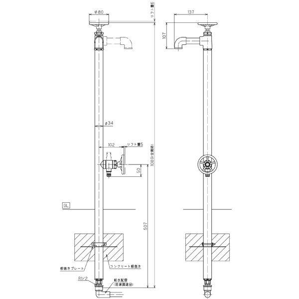
■サイズ:高さ1089mm
■直径:34mm
■重量:2.5kg
■材質:アルミ
■材質:ステンレス

少し無骨な水栓柱 ラギッド

むき出しの水道管をイメージした、長い吐水口と大きめのハンドルが特徴の水栓柱。
個性的なのに使いやすく、どこかぬくもりのある水栓柱です。


●蛇口一体型
●伸縮固定バンド・支持金具装着可
●根巻きプレート装着可・手洗器装着可
●ウッドデッキ固定金具装着可

※注意
●伸縮固定バンド・固定バンドを使用すると蛇口が360°回りません。
●補助蛇口の位置は現場合わせでお願いします。
●凍結のおそれがある場合は必ず水抜栓を設置してください。